41
$745,000 Sale
Listed 2 days ago
1012 145TH STREET CIR NE
· 3
· 2.50
· 3
· 2485
Key Facts
Key facts for 1012 145TH STREET CIR NE
Property Type
House
Parking
3 garage
MLS #
A4667308
Size
2485 sqft
Basement
-
Listed on
-
Lot size
-
Tax
$5,045.47 /yr
Days on Market
-
Year Built
2014
Maintenance Fee
$115/mo
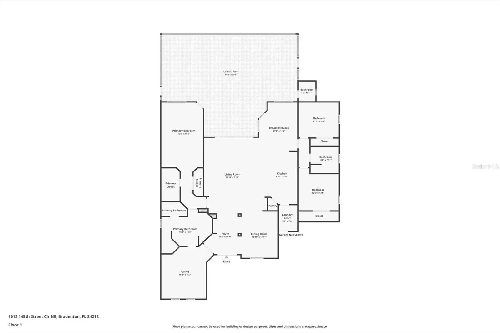
Description
Pride in ownership radiates from the moment you pull in the beautiful pavestone driveway. This pool home is an absolute "10" with a bright, open layout, water views, and space designed for everyday living and effortless entertaining. Step inside to a light-filled living area with high ceilings and c...lear sightlines straight through to the lanai and pool beyond. To the left of the entry, a versatile den offers room for a home office, nursery, reading nook, or creative space. The formal dining room sits nearby, perfectly placed for hosting family dinners or weekend get-togethers. The kitchen brings both function and warmth, featuring granite countertops, stainless steel appliances, ample wood cabinetry, and bar-height seating for easy breakfasts or casual conversation. Just off the kitchen, a sunny dinette framed by windows creates the perfect morning coffee spot, while the living room offers plenty of space to unwind or entertain with views of the pool glimmering outside. The primary suite feels like its own private retreat, complete with tray ceilings, lanai access, and an en suite bathroom offering dual vanities, a soaking tub, and a walk-in shower. Two additional bedrooms share a full bath between them, and a convenient half bath off the lanai adds easy access for guests. The laundry room includes cabinetry and a utility sink for daily convenience. Outdoors, the screened lanai delivers the ultimate Florida lifestyle—with a sparkling pool, covered sitting area, and tranquil lake views that stretch beyond the screen. Whether you’re hosting sunset gatherings, floating under the afternoon sun, or winding down with a drink in hand, this space captures everything people love about life on the Gulf Coast. A side-load 3-car garage completes the home with generous storage and protection from the Florida heat—ideal for vehicles, tools, or toys. Tucked within the gates of The Enclave at Country Meadows, this home offers a bright, inviting atmosphere and a backyard that captures everything people love about Florida living—where every day feels a little lighter, warmer, and more relaxed.
Similar Properties (No results)
Listing courtesy of: TNG REAL ESTATE, 941-773-9599

Listings courtesy of Stellar MLS as distributed by MLS GRID.